Jahr: 1956-58

Adresse: Am Hellespont

Auftraggeber: Bezirksamt Tempelhof

Funktion: Schulgebäude

Zusammenarbeit: keine Angabe

Archivmaterial bei: Berlinische Galerie SW-Fotos Walter Köster

 

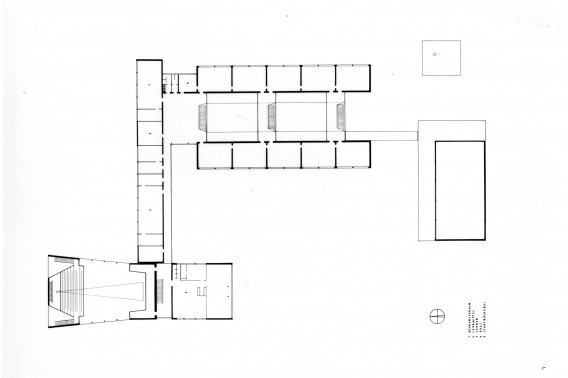
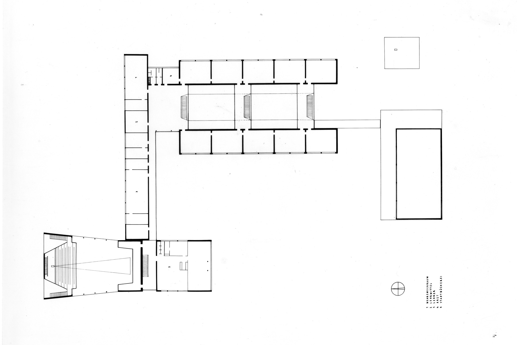
Wettbewerb 1. Preis. 20-klassige Schule mit Sporthalle und Aula. Die Aula konnte wegen finanzieller Schwierigkeiten bis heute nicht realisiert werden.

Heute (2013): Die Schule steht unter Denkmalschutz und wird mit finanzieller Hilfe der EU durch "Haberland Architekten BDA" energetisch saniert.
PDF öffnen "Erläuterungen"

PDF öffnen "Tagesspiegel"

bwd  Seite 2/3  fwd
05_grundriss-obergeschoss.jpg
dardanellenweg-01.jpg
dardanellenweg-02.jpg
dardanellenweg-03.jpg
bwd  Seite 1/2  fwd
flur_mit_ecke.jpg
flur_mit_gruenblick.jpg
schulhof_01.jpg
schulhof_02.jpg