|
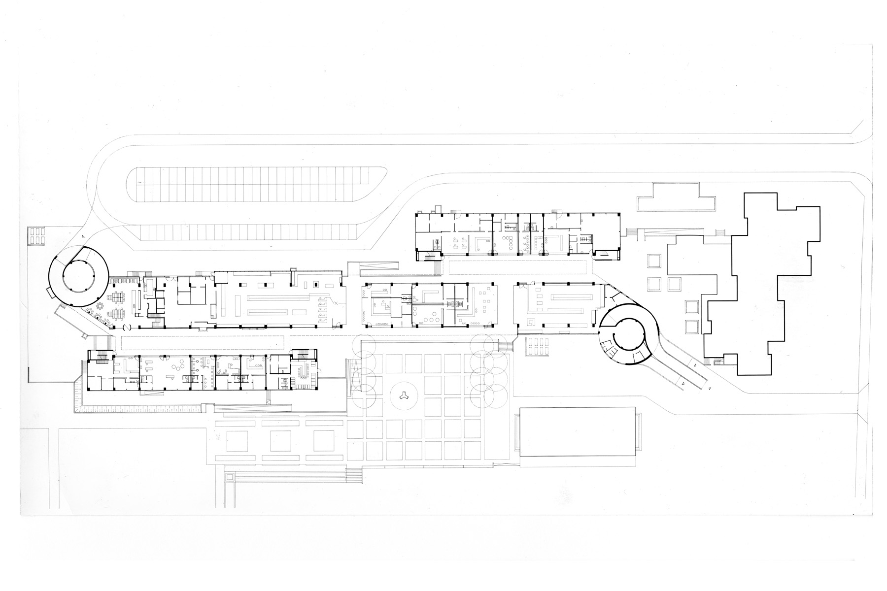
Jahr: 1964-1966 Adresse: Wutzkyallee Auftraggeber: DeGeWo Funktion: Ladenzentrum Zusammenarbeit: Ulrich Wolff, Jens Petersen Archivmaterial bei: Berlinische Galerie |
Ein 4-geschossiges Ladenzentrum von 5.000 m2 gegensätzlich konzipiert zum Wohnungsbau. Parkplätze im Obergeschoss sind über Brücken mit der zweihüftigen Ladenanlage mit Straßencharakter im Innenbereich verbunden. Die Farbgebung der Parkdeckverkleidung aus Eternit-Sichtblenden war ein dunkelrot/dunkelgrün Rombenmuster. Heute: Das Ladenzentrum ist total umgebaut. Nur die Spindelrampen zum Parkdach erinnern noch an den ursprünglichen Entwurf. |
|


PDF öffnen "Bauwelt 15"

